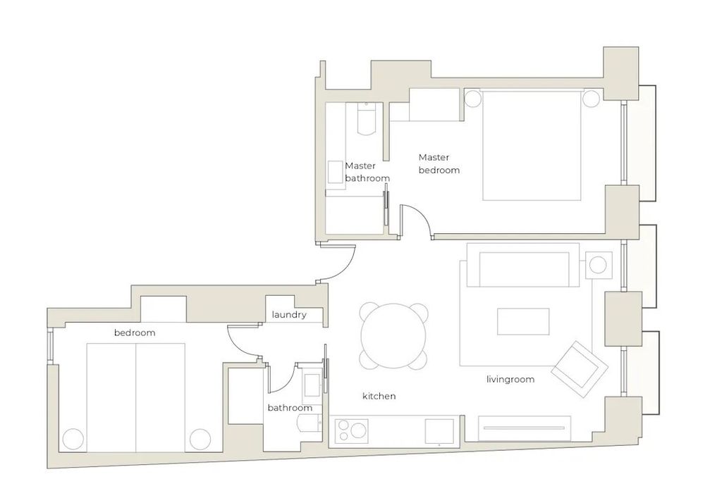
• 50 mq. M.
  • 1 Camere da letto
  • 1 Bagni

Descrizione della proprietà

Calle de Galileo, Madrid, Madrid 28015 Apartment. This 1 bedroom 1 bathroom Apartment is for rent on realestate.com.au by Housing Anywhere.